Анализ функционирования и принципа работы немецкого стандартного поворотного обратного клапана F6 DIN3202 в трубопроводах
Время выпуска:
Oct 09,2025
Обратный клапан с поворотным диском: Положительное давление жидкости толкает диск клапана, заставляя его вращаться вокруг оси шарнира и открываться (обычно открытие происходит под углом 45°–90°). Когда прямой поток замедляется или прекращается, диск клапана начинает опускаться под действием собственной силы тяжести (и возможного усилия пружины). Обратное давление потока ускоряет закрытие диска клапана и вызывает его возвратное вращение обратно к седлу клапана. Закрывающее действие в основном представляет собой качание.

Ротационный обратный клапан — это эффективный односторонний обратный клапан, предотвращающий обратный поток при остановке воды. Благодаря своей уникальной конструкции и исполнению он не влияет на срок службы водяного насоса, исключая образование зоны перекрытия. Поэтому ротационный обратный клапан, также известный как обратный клапан «с большим диаметром полного бассейна», является предпочтительным универсальным клапаном для пожарных и коммунальных трубопроводов.
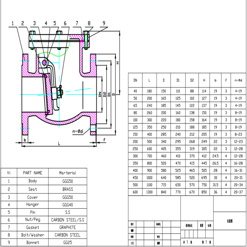
Запорный клапан поворотного типа изготовлен из ковкого чугуна, обладающего высокой прочностью на растяжение и устойчивостью к трещинам. Уплотнительная поверхность имеет две формы уплотнения: латунную сварку или уплотнение из EPDM-резины. Клапан подходит для различных условий в трубопроводных сетях; корпус клапана покрыт эпоксидной смолой, что гарантирует, что качество воды и срок службы не будут ухудшаться из-за коррозии жидкости. Направляющий вал золотника выполнен из нержавеющей стали 304, что эффективно предотвращает поломку вследствие коррозии жидкости, которая может привести к повреждению или разрушению водяных насосов и других устройств, вызывая неожиданные серьезные вторичные проблемы.